Description

TIJDELIJK TE HUUR COMPLEET GEMEUBILEERDE WONING, IDEAAL TER OVERBRUGGING VAN EEN PERIODE.

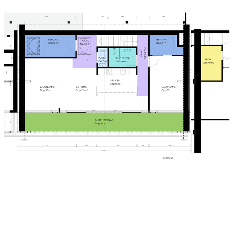
West 49G- 2 slaapkamer appartement beneden met terras

INDELING
Een prachtig en luxe gemeubileerd appartement met 2 slaapkamers en een heerlijk zonneterras. Ook in deze woning geniet u elke dag opnieuw van het weidse, landelijke uitzicht. Het complex heeft veel luxe voorzieningen, zoals een verwamd zwembad en een wasruimte met professionele wasmachines en drogers.

De appartementen zijn ideaal voor verschillende doelgroepen. Denk aan bedrijven die een tijdelijk project hebben in onze regio, mensen die tijdelijk woonruimte zoeken vanwege brand -en of waterschade. De huidige bewoners zijn onder andere expats, gescheiden mensen en families met hun kinderen en -kleinkinderen. Je voelt je hier direct thuis. 

Woonoppervlakte circa 104m2
 
Huurcondities:
-Ingang 01-001-2026
-Huurprijs gemeubileerd en inclusief servicekosten € 2.270,00 excl. 21% BTW
-Korte termijn verhuur, maximaal 6 maanden
-Btw belaste verhuur van 21%
-Exclusief gemeentelijke belastingen
-Geen huisdieren
-Roken alleen op aangewezen plek bij fietsenberging.

Het complex:
Welkom in dit prachtige en luxe appartementencomplex in Avenhorn. Waar alle gemeenschappelijke binnenruimte en buitenruimte van iedereen is. Waar buren elkaar kunnen ontmoeten bij het verwarmde zwembad, het strandje, een vuurplaats, de hobbyloods, de kantoortuin, gym/yoga ruimte en in de fantastische binnentuin. Een mooie schuit voor een leuke boottocht, een  wasserette en een gezamenlijke ruimte met keuken voor een feestje of gezellig etentje, het is allemaal aanwezig. Zelfs voor de gasten van de bewoners zijn er twee gastenverblijven waar men kan overnachten. Die moet je wel even reserveren. De technisch beheerder zorgt voor dagelijks onderhoud. Al deze voorzieningen zijn verwerkt in de huurprijs. 

Kenmerken:
- alle wooneenheden zijn gasloos
- duurzaam gebouwd met zonnepanelen en warmtepompen
- vloerverwarming en volledig geïsoleerd
- energielabel A+
- huismeester/ conciërge aanwezig
- rondom het gebouw parkeren en er zijn laadpalen aanwezig
- alle ruimtes zijn gemeenschappelijk m.u.v. de eigen woning

LIGGING & BEREIKBAARHEID
De steden Hoorn, Alkmaar, Heerhugowaard, Purmerend en Amsterdam zijn gemakkelijk bereikbaar met de auto middels de nabij gelegen snelweg A7. De nabijgelegen bushalte in Avenhorn rijdt naar de Noordbeemster of Hoorn station en de bushalte aan de Rijksweg rijdt naar Amsterdam Centraal of Hoorn station.

Avenhorn beschikt over alle voorzieningen waaronder, scholen, sportfaciliteiten, gezondheidscentra en het winkelcentrum ‘’Vijverhof’’ met een grote verscheidenheid aan winkels welke allen op loopafstand van elkaar.

De voorzieningen van het complex zijn vrij voor gebruik, schoonmaak en onderhoud van gemeenschappelijke ruimtes, zoals:
1.	De Menza met keuken en tv-zithoek
2.	Wasruimte met wasmachine, drogers en toiletten 
3.	Gemeenschappelijke binnen en buitentuin met zwembad, moestuin en speeltuin
4.	Kantoortuin
5.	‘t Gymnasium 
6.	Parkeerterrein met laadpalen
7.	Fietsenstalling buiten met aangewezen plek om te roken
8.	Technische dienst voor onderhoud en vragen
9. Inpandige ruimte voor opslag / fietsenstalling
10. 2 gastenkamers via reservering te boeken
11. De elektrisch schuit via reservering te boeken

Neem contact met ons op voor een bezichtiging!

Features