Beschrijving

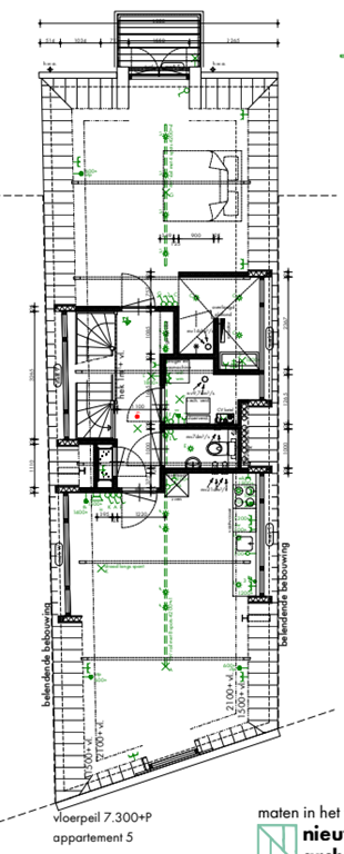
***Appartement 5 tweede verdieping***

Huurprijs gemeubileerd € 2200,00 inclusief voorschot g.w.e. en internet/tv, exclusief 21% BTW.
woonoppervlakte circa 72 m2 

Luxe wonen in het hart van Hoorn – bovenin én met uitzicht!

Aan de sfeervolle Grote Noord in Hoorn zijn vijf hoogwaardige appartementen gerealiseerd in een karakteristiek en compleet gerenoveerd pand. Met behoud van de historische charme is het gebouw getransformeerd naar hedendaagse woonkwaliteit. Ieder appartement heeft zijn eigen indeling en stijl, maar delen één gemene deler: luxe afwerking, doordachte indelingen en een ligging op een van de mooiste plekken van de stad.
Stadsleven binnen handbereik

Wonen aan de Grote Noord betekent wonen in het kloppend hart van Hoorn. Alles ligt op loopafstand: van gezellige koffietentjes en goede restaurants tot ambachtelijke winkels, supermarkten, musea en het NS-station. Binnen enkele minuten wandel je naar het IJsselmeer, de haven of de Roode Steen. Ook de bereikbaarheid is uitstekend – met de trein zit je zó in Amsterdam of Alkmaar en de uitvalswegen richting de A7 zijn snel bereikbaar.

Welkom in appartement 5, gelegen op de bovenste verdieping van het statige en compleet herontwikkelde pand aan de Grote Noord 79 in Hoorn. Hier woon je letterlijk op niveau, met een verrassende indeling, veel lichtinval en stijlvolle afwerking. De ligging in het bruisende centrum van Hoorn betekent dat je de winkels, horeca en het station allemaal op loopafstand hebt, terwijl je binnenshuis geniet van rust, ruimte en comfort.

INDELING

Vanuit de gedeelde entree bereik je via het trappenhuis dit penthouse-achtige appartement.
Aan de achterzijde vind je een ruime slaapkamer, met voldoende plek voor een groot bed en een kastenwand. Openslaande deuren bieden toegang tot een eigen balkon – perfect voor een rustige ochtendkoffie in de zon.

De badkamer is luxe uitgevoerd met inloopdouche en wastafel, direct aangrenzend aan de slaapkamer. Het toilet bevindt zich separaat in de hal.

De royale leefruimte aan de voorzijde strekt zich uit over de volledige breedte van het pand en beschikt over een open keuken (met inbouwapparatuur), eethoek én zitgedeelte. Dankzij de dakkapellen en het schuine dak voelt dit als een karakteristieke en tegelijk moderne loft.

Bijzonderheden:
•	Gelegen op de bovenste verdieping met veel privacy
•	Eigen balkon aan de achterzijde
•	Grote open living met karakteristieke daklijnen
•	Luxe keuken en badkamer
•	Sfeervolle houten vloer in visgraat gelegd
•	Energielabel A
•	Gerenoveerd in 2025 – instapklaar

Kenmerken en aanvullingen:
- Luxe inrichting en inventaris;
- Water, elektriciteit en verwarming (inclusief bij normaal verbruik);
- Snel WIFI;
- Toegang tot 30 tv kanalen;
- Inclusief servicekosten;
- Inpandige prive bergruimte in centrale hal;
- Exclusief 21% BTW
- Toeslag toeristenbelasting gemeente Hoorn, € 3,50 per persoon per nacht.
- Niet roken 
- Geen huisdieren

Kenmerken