Beschrijving

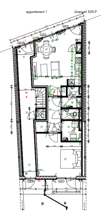
***Appartement 1 Begane grond***

Huurprijs gemeubileerd € 2200,00 inclusief voorschot g.w.e. en internet/tv, exclusief 21% BTW. 
woonoppervlakte circa 72 m2 

Wonen in een monumentaal pand in hartje Hoorn – volledig vernieuwd, klaar voor de toekomst

Aan de sfeervolle Grote Noord in Hoorn zijn vijf hoogwaardige appartementen gerealiseerd in een karakteristiek en compleet gerenoveerd pand. Met behoud van de historische charme is het gebouw getransformeerd naar hedendaagse woonkwaliteit. Ieder appartement heeft zijn eigen indeling en stijl, maar delen één gemene deler: luxe afwerking, doordachte indelingen en een ligging op een van de mooiste plekken van de stad.

Stadsleven binnen handbereik

Wonen aan de Grote Noord betekent wonen in het kloppend hart van Hoorn. Alles ligt op loopafstand: van gezellige koffietentjes en goede restaurants tot ambachtelijke winkels, supermarkten, musea en het NS-station. Binnen enkele minuten wandel je naar het IJsselmeer, de haven of de Roode Steen. Ook de bereikbaarheid is uitstekend – met de trein zit je zó in Amsterdam of Alkmaar en de uitvalswegen richting de A7 zijn snel bereikbaar.

INDELING
Appartement 1 ligt op de begane grond en heeft een bijzonder prettige indeling. De woonkamer met hoge ramen aan de voorzijde biedt ruimte voor een zit- en eethoek. Dankzij de open indeling met de keuken is dit een fijne plek voor wie houdt van ruimtelijkheid. De keuken is modern uitgevoerd met inbouwapparatuur en voldoende werk- en opbergruimte.

De gang verbindt de leefruimte met de rest van het appartement. Hier tref je onder andere het separate toilet, de badkamer met inloopdouche en wastafel, een praktische technische ruimte en één slaapkamers. De hoofdslaapkamer ligt aan de rustige achterzijde en heeft openslaande deuren naar een privé buitenruimte/patio. Ideaal om even buiten te zitten of om wat frisse lucht binnen te laten.

Dit appartement is perfect voor wie op zoek is naar een comfortabele en stijlvolle stadswoning, zonder concessies te doen aan gemak of sfeer. Alles is nieuw, strak afgewerkt en instapklaar.

Bijzonderheden:
•	Nieuw gerealiseerd appartement in een compleet gerenoveerd pand
•	Energielabel A+
•	Gelegen in hartje centrum, op loopafstand van alle voorzieningen
•	1 slaapkamer en privé buitenruimte
•	Hoogwaardige afwerking met moderne keuken en badkamer
•	Ideaal voor bewoning of tijdelijke verhuur aan expats

Kenmerken en voorwaarden:
- Luxe inrichting en inventaris;
- Water, elektriciteit en verwarming (inclusief bij normaal verbruik);
- Snel WIFI;
- Toegang tot 30 tv kanalen;
- Inclusief servicekosten;
- Inpandige prive bergruimte in centrale hal;
- Exclusief BTW
- Toeslag toeristenbelasting gemeente Hoorn, € 3,50 per persoon per nacht.
- Niet roken 
- Geen huisdieren

Kenmerken