New for rent

For rent: Luxe en gezamenlijk wonen in een groene en duurzame omgeving.

€2,270 /mo
Address: West 49G, 1633 JD Avenhorn
Type of residence Apartment, ground floor apartment
Liveable area 104 m²
Acceptance By consultation
Status New for rent

Note

General

TIJDELIJK TE HUUR COMPLEET GEMEUBILEERDE WONING, IDEAAL TER OVERBRUGGING VAN EEN PERIODE.

West 49G- 2 slaapkamer appartement beneden met terras

INDELING
Een prachtig en luxe gemeubileerd appartement met 2 slaapkamers en een heerlijk zonneterras. Ook in deze woning geniet u elke dag opnieuw van het weidse, landelijke uitzicht. Het complex heeft veel luxe voorzieningen, zoals een verwamd z... More info
  • Features

    All characteristics
    Type of residence Apartment, ground floor apartment
    Construction period 2024
    Status New for rent
    Offered since 09 December 2025
  • Location

Features

Offer
Reference number 496
Asking price €2,270 per month (incl. service costs, incl. water, incl. electricity, furnished, upholstered)
Deposit €2,270
Upholstered Yes
Upholstered Upholstered
Status New for rent
Acceptance By consultation
Offered since 09 December 2025
Construction
Type of residence Apartment, ground floor apartment
Floor 1st floor
Type of construction Existing estate
Construction period 2024
Certifications Energy performance advice
Isolations Eco construction, Floor, Full
Surfaces and content
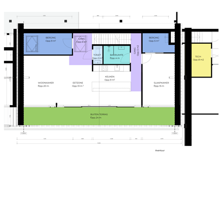
Floor Surface 104 m²
Content 270 m³
External surface area storage rooms 6 m²
Layout
Number of floors 1
Number of rooms 3 (of which 2 bedrooms)
Number of bathrooms 1
Outdoors
Location Country side, On waterway, Unobstructed view
Energy consumption
Energy certificate A+
Features
Heating Heat pump, Solar collectors
Ventilation method Mechanical ventilation, Natural ventilation
Has fibre optical cable Yes
Has an internet connection Yes
Has sliding doors Yes
Has a swimming pool Yes
Has ventilation Yes

Description

TIJDELIJK TE HUUR COMPLEET GEMEUBILEERDE WONING, IDEAAL TER OVERBRUGGING VAN EEN PERIODE.

West 49G- 2 slaapkamer appartement beneden met terras

INDELING
Een prachtig en luxe gemeubileerd appartement met 2 slaapkamers en een heerlijk zonneterras. Ook in deze woning geniet u elke dag opnieuw van het weidse, landelijke uitzicht. Het complex heeft veel luxe voorzieningen, zoals een verwamd zwembad en een wasruimte met professionele wasmachines en drogers.

De appartementen zijn ideaal voor verschillende doelgroepen. Denk aan bedrijven die een tijdelijk project hebben in onze regio, mensen die tijdelijk woonruimte zoeken vanwege brand -en of waterschade. De huidige bewoners zijn onder andere expats, gescheiden mensen en families met hun kinderen en -kleinkinderen. Je voelt je hier direct thuis.

Woonoppervlakte circa 104m2

Huurcondities:
-Ingang 01-001-2026
-Huurprijs gemeubileerd en inclusief servicekosten € 2.270,00 excl. 21% BTW
-Korte termijn verhuur, maximaal 6 maanden
-Btw belaste verhuur van 21%
-Exclusief gemeentelijke belastingen
-Geen huisdieren
-Roken alleen op aangewezen plek bij fietsenberging.

Het complex:
Welkom in dit prachtige en luxe appartementencomplex in Avenhorn. Waar alle gemeenschappelijke binnenruimte en buitenruimte van iedereen is. Waar buren elkaar kunnen ontmoeten bij het verwarmde zwembad, het strandje, een vuurplaats, de hobbyloods, de kantoortuin, gym/yoga ruimte en in de fantastische binnentuin. Een mooie schuit voor een leuke boottocht, een wasserette en een gezamenlijke ruimte met keuken voor een feestje of gezellig etentje, het is allemaal aanwezig. Zelfs voor de gasten van de bewoners zijn er twee gastenverblijven waar men kan overnachten. Die moet je wel even reserveren. De technisch beheerder zorgt voor dagelijks onderhoud. Al deze voorzieningen zijn verwerkt in de huurprijs.

Kenmerken:
- alle wooneenheden zijn gasloos
- duurzaam gebouwd met zonnepanelen en warmtepompen
- vloerverwarming en volledig geïsoleerd
- energielabel A+
- huismeester/ conciërge aanwezig
- rondom het gebouw parkeren en er zijn laadpalen aanwezig
- alle ruimtes zijn gemeenschappelijk m.u.v. de eigen woning

LIGGING & BEREIKBAARHEID
De steden Hoorn, Alkmaar, Heerhugowaard, Purmerend en Amsterdam zijn gemakkelijk bereikbaar met de auto middels de nabij gelegen snelweg A7. De nabijgelegen bushalte in Avenhorn rijdt naar de Noordbeemster of Hoorn station en de bushalte aan de Rijksweg rijdt naar Amsterdam Centraal of Hoorn station.

Avenhorn beschikt over alle voorzieningen waaronder, scholen, sportfaciliteiten, gezondheidscentra en het winkelcentrum ‘’Vijverhof’’ met een grote verscheidenheid aan winkels welke allen op loopafstand van elkaar.

De voorzieningen van het complex zijn vrij voor gebruik, schoonmaak en onderhoud van gemeenschappelijke ruimtes, zoals:
1. De Menza met keuken en tv-zithoek
2. Wasruimte met wasmachine, drogers en toiletten
3. Gemeenschappelijke binnen en buitentuin met zwembad, moestuin en speeltuin
4. Kantoortuin
5. ‘t Gymnasium
6. Parkeerterrein met laadpalen
7. Fietsenstalling buiten met aangewezen plek om te roken
8. Technische dienst voor onderhoud en vragen
9. Inpandige ruimte voor opslag / fietsenstalling
10. 2 gastenkamers via reservering te boeken
11. De elektrisch schuit via reservering te boeken

Neem contact met ons op voor een bezichtiging!

Floor plans

Recently viewed

View all listings